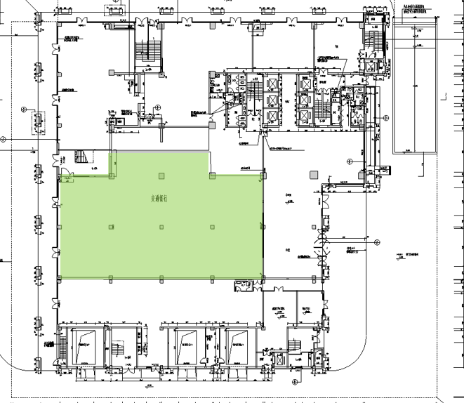
苏州绿原城乡建设有限公司拟对位于苏州市姑苏区人民路3158号万融国际大厦102室进行公开竞标招租(详见招租位置示意图),102室建筑面积约800㎡(具体区域招标以现场确认为准)
万融国际大厦102室目招租位置示意图:

| 店面号 | 建筑面积 | 楼层 | 经营业态 |
| 万融国际大厦102室 | 约800㎡ | 一层 | 金融 |
一、报名条件:
1、具有经营相关业态经历并提供相关证明材料,在苏合法注册的独立法人资格的企业或个人;
2、企业:注册资金不低于50万元,注册经营范围内包含此次竞标从事业态。财务和经营状况良好,具备履行合同能力;
3、个人
1)人行征信报告
2)竞标人提供身份证原件、复印件,在苏居住证明(本市户口本或临时居住证)。
二、报名、现场勘查、答疑的方式和时间:
报名、现场勘查、答疑的地点:苏州市姑苏区人民路3158号万融国际大厦B1物业服务中心; 咨询电话:15250013779 王女士
苏州绿原城乡建设有限公司